Balconies
1
Super Built-up Area
165
Carpet Area
97
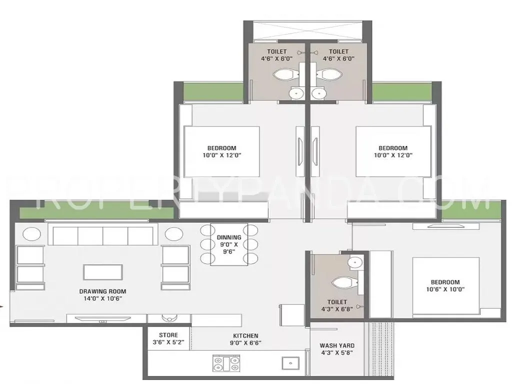
Other Rooms
Store Room
No. of Floor
12
No. of Blocks
2
Furnishing
Un furnished
Property Ownership
Freehold
Reserved Parking
Covered Parking
Status
Ready to move
Type
Apartment And Flat
Bedrooms
3
Bathrooms
3
Elevator
2
About This Listing
Introducing Akshaj Caladium, a luxurious 3BHK residential project located in the bustling city of Ahmedabad, specifically in the sub-city of Bhadaj. This magnificent development offers spacious and modern living spaces that cater to your every need. This project is brought to you by renowned developer Akshaj Caladium. The project boasts a range of amenities such as a gym, swimming pool, playground, and more, making it perfect for families and individuals seeking comfort and convenience. Experience the best of urban living in Bhadaj with its prime location and excellent connectivity to key area... Read more
Amenities
elevators
firefighting system
indoor games room
lifts
parking space
play area
power backup
security service
senior citizen area
water supply
More...
Less

